Skip to main content
Collins & Company Realty
FOR SALE
$200,000

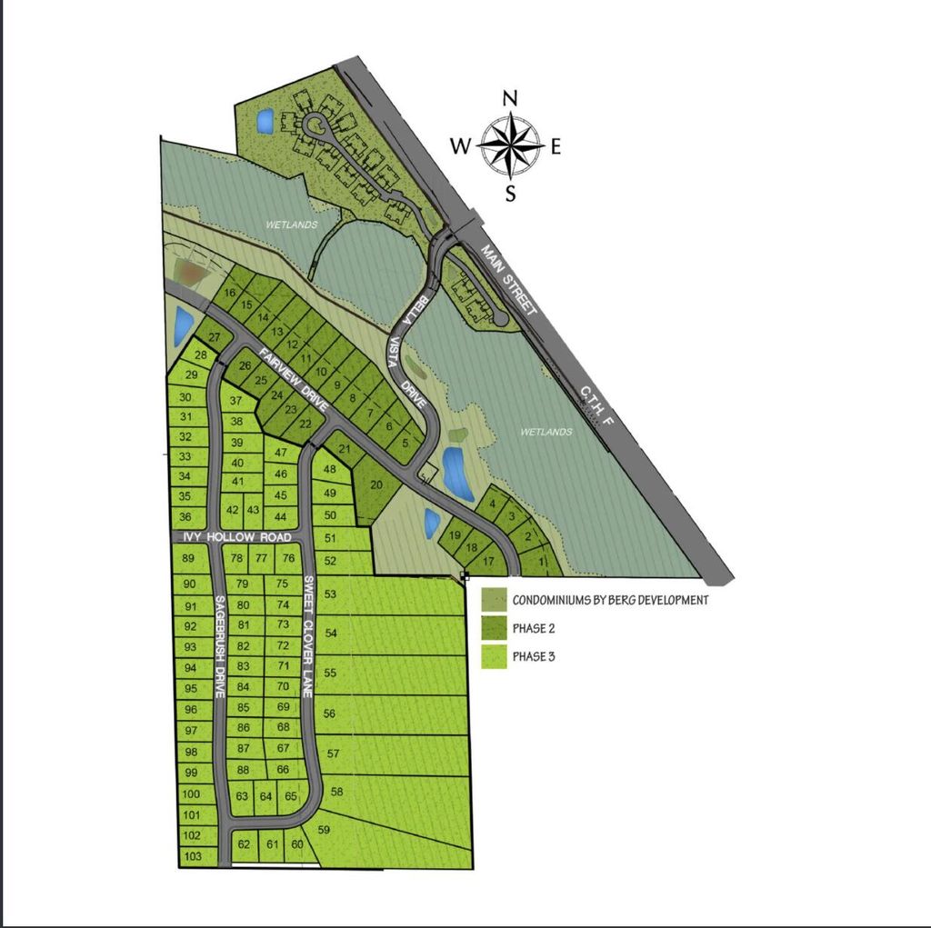
W212N6831 Fairview Dr
Menomonee Falls, WI 53051

Land
Land Lot
0.55
Acre Lot
Courtesy: Berg Elite Realty
Home> Wisconsin> Menomonee Falls> 53051
Secure Lot 9 in the prestigious Bella Vista Estates of Menomonee Falls. This homesite offers northeastern orientation, full walkout exposure, and serene wetland viewsideal for creating a residence that harmonizes with its natural surroundings. Exclusively available for construction with Berg Custom Homes, renowned for their commitment to quality and personalized design, this lot presents a unique opportunity to craft a home tailored to your lifestyle. Located within the esteemed Hamilton School District, Bella Vista Estates combines the tranquility of a secluded countryside setting with convenient access to urban amenities.
1935532
Land, Other
Waukesha
0.55 Acres
Public Water
Public Sewer
True https://photos.prod.cirrussystem.net/2089/6fe8e532c0891abc0f0bd4ac91c866b1/1846036613.jpeg 1935532
Loading...
Data Source: Constellation Data Labs®
The scores below measure the walkability of the address, access to public transit of the area and the convenience of using a bike on a scale of 1-100

Walk Score

Transit Score

Bike Score

Loading...
Data Provided by ATTOM Data®
Courtesy: Berg Elite Realty
IDX information is provided exclusively for consumers personal, non-commercial use and that it may not be used for any purpose other than to identify prospective properties consumers may be interested in purchasing. Information is supplied by seller and other third parties and has not been verified. Copyright 2025 MetroMLS - All Rights Reserved
This content last refreshed on 2/18/2026 9:04 PM CST. Some properties which appear for sale on this web site may subsequently have sold or may no longer be available.
Information is deemed reliable but is not guaranteed.